Structural detail with specifications detail.
Description
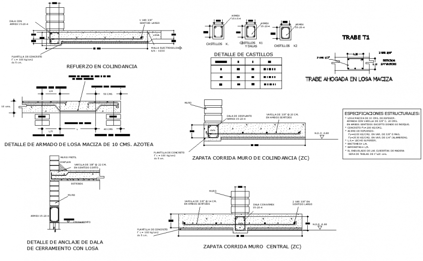
Structural detail with specifications detail. dimensions detail, plan layout and section plan view with detailing, reinforcement detail.
Uploaded by:
Eiz
Luna
Structural detail with specifications detail. dimensions detail, plan layout and section plan view with detailing, reinforcement detail.
Uploaded by:
Luna