LOGIN
HOME
CATEGORIES
UPLOAD FILE
PRICING
HOUSE PLAN
ABOUT US
CONTACT US
House plan drawing samples
Home
Categories
Architecture
House Plan
House plan drawing samples
Uploaded by:
Poonam
View Profile
View Profile
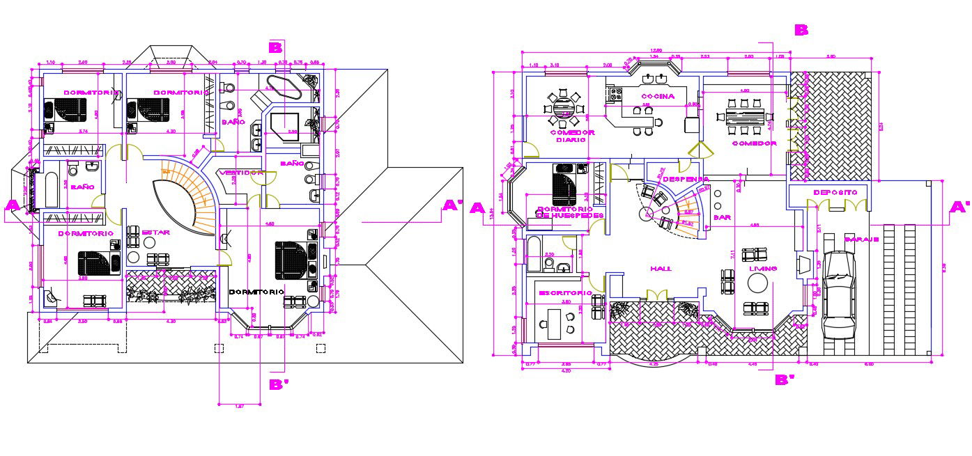
Description
Furnished condominium plan with the details of bedroom, kitchen, bathroom with bath tub, kitchen with attached wash area. Open space near the parking area.
File Type:
DWG
File Size:
515 KB
Category::
Architecture
Sub Category::
House Plan
type:
Gold
Uploaded by:
Poonam
View Profile
Download
Add to libary
find Latest
Related
Files