LOGIN
HOME
CATEGORIES
UPLOAD FILE
PRICING
HOUSE PLAN
ABOUT US
CONTACT US
Hotel DWG file Download
Home
Categories
Architecture
Hotels and Restaurants
Hotel DWG file Download
Uploaded by:
Jiya
View Profile
View Profile
Description
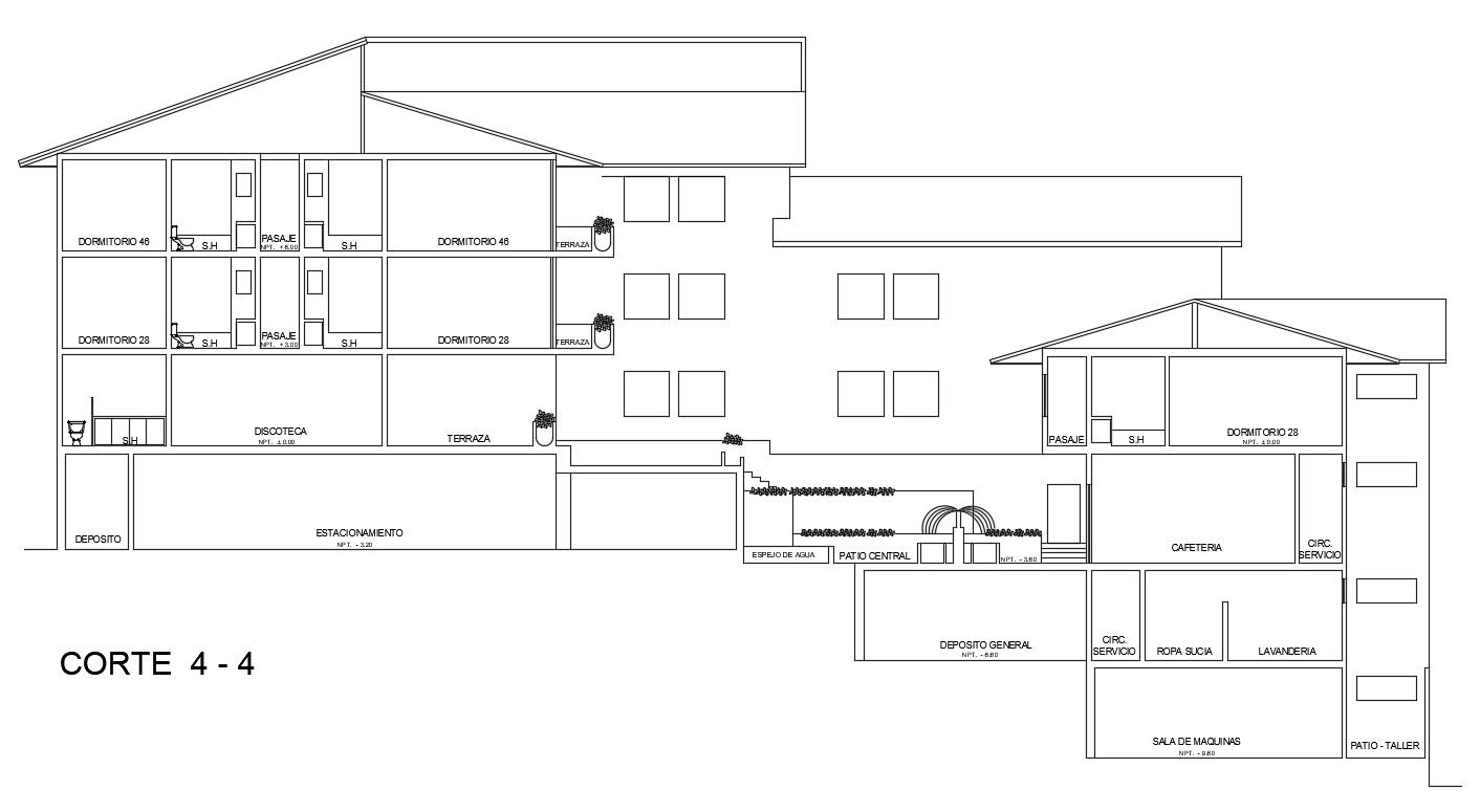
Hotel building sectional drawings detail CAD file that shows building section drawings along with floor level details.
File Type:
DWG
File Size:
131 KB
Category::
Architecture
Sub Category::
Hotels and Restaurants
type:
Gold
Uploaded by:
Jiya
View Profile
Download
Add to libary
find Latest
Related
Files