Science School Building Plan

Science School Building Plan
Profile

Uploaded by:

Komal

Description
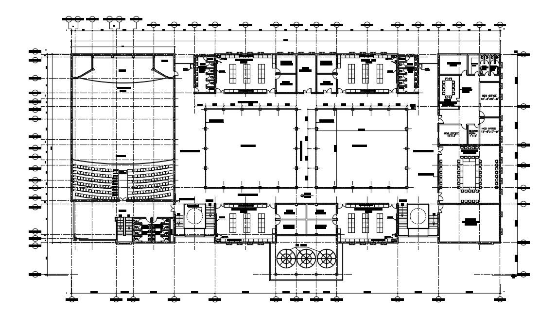
Download Science School Building Plan AutoCAD format includes an auditorium, open to sky area, biology lab, computer lab, chemistry, and physics laboratory, staff room and a meeting room.
Profile

Uploaded by:

Komal

find Latest

Related Files

WhatsApp Chat