Hotel Layout Plan

Hotel Layout Plan
Profile

Uploaded by:

Komal

Description
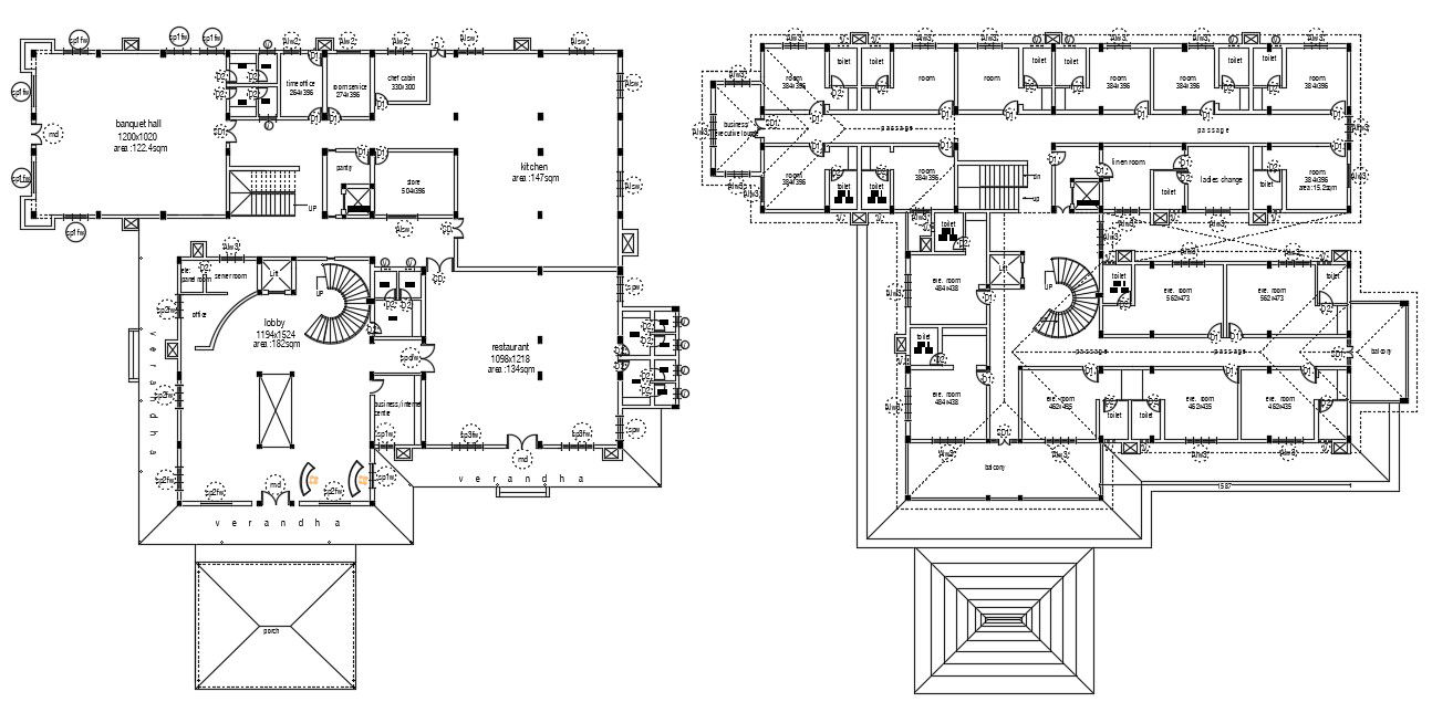
The Architecture Hotel Layout Plan of the ground floor and first-floor plan includes a banquet hall, kitchen, restaurant, lobby, business executive lounge, and bedrooms with all area measurement detail.
Profile

Uploaded by:

Komal

find Latest

Related Files

WhatsApp Chat