Staircase wall design CAD file download

Staircase wall design CAD file download
Profile

Uploaded by:

Jiya

Description
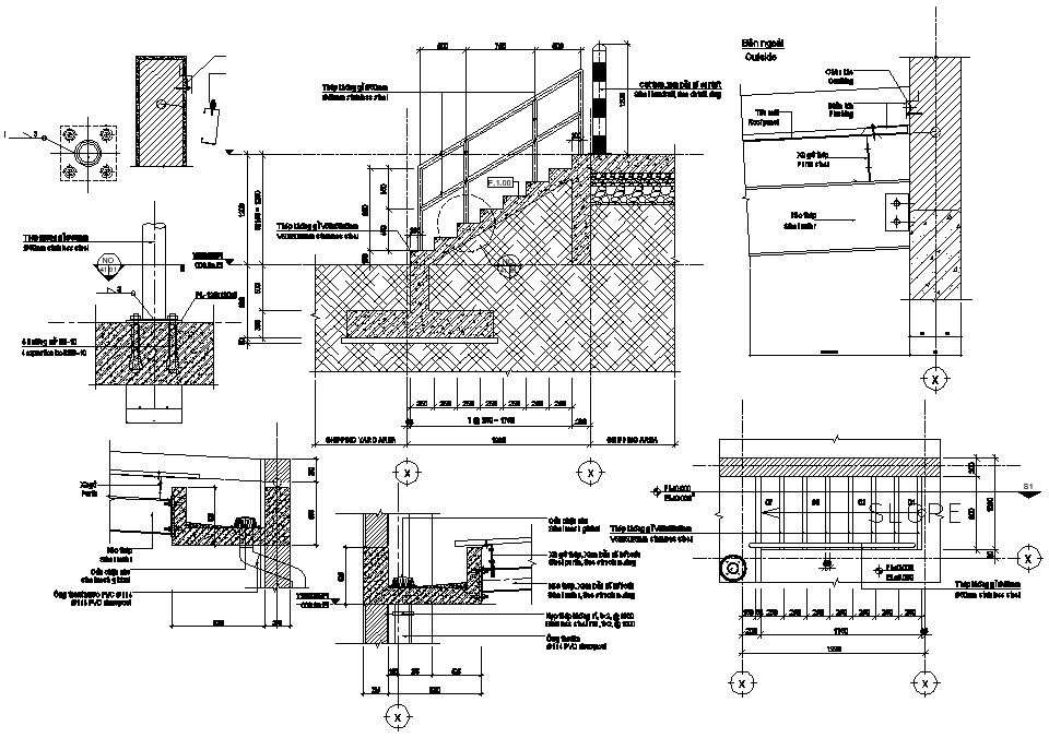
Drawing details of staircase construction 2d view DWG file that shows staircase construction details along with details of reinforcement and concrete masonry blocks details.
Profile

Uploaded by:

Jiya

find Latest

Related Files

WhatsApp Chat