LOGIN
HOME
CATEGORIES
UPLOAD FILE
PRICING
HOUSE PLAN
ABOUT US
CONTACT US
Office Room Layout Free DWG File
Home
Categories
Architecture
House Plan
Office Room Layout Free DWG File
Uploaded by:
Mehul
Patel
View Profile
View Profile
Description
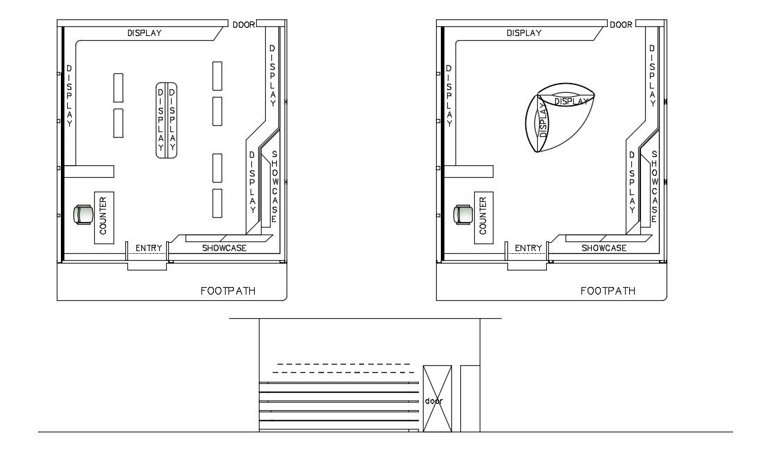
Office Room Layout plan which shows in a layout plan, door, counter, show chase, footpath, display, This file draw in autocad format.
File Type:
DWG
File Size:
239 KB
Category::
Architecture
Sub Category::
House Plan
type:
Free
Uploaded by:
Mehul
Patel
View Profile
Download
Add to libary
find Latest
Related
Files