LOGIN
HOME
CATEGORIES
UPLOAD FILE
PRICING
HOUSE PLAN
ABOUT US
CONTACT US
Restaurant Plan CAD Drawing download
Home
Categories
Architecture
Hotels and Restaurants
Restaurant Plan CAD Drawing download
Uploaded by:
Jiya
View Profile
View Profile
Description
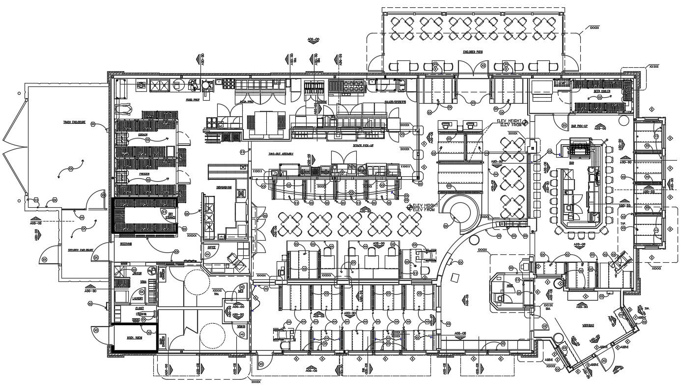
CAD Drawing of Restaurant building floor plan that shows floor plan drawing details of building along with furniture blocks details in building and floor leveling details.
File Type:
DWG
File Size:
2.5 MB
Category::
Architecture
Sub Category::
Hotels and Restaurants
type:
Gold
Uploaded by:
Jiya
View Profile
Download
Add to libary
find Latest
Related
Files