LOGIN
HOME
CATEGORIES
UPLOAD FILE
PRICING
HOUSE PLAN
ABOUT US
CONTACT US
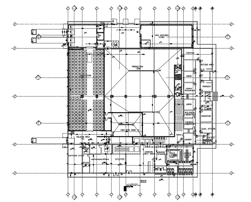
Factory Design Plan
Home
Categories
Architecture
Industrial Plant
Factory Design Plan
Uploaded by:
Jiya
View Profile
View Profile
Description
Food industrial plant factory CAD plan which shows building floor plan details along with machinery blocks details and dimension hidden line details.
File Type:
DWG
File Size:
1.5 MB
Category::
Architecture
Sub Category::
Industrial Plant
type:
Gold
Uploaded by:
Jiya
View Profile
Download
Add to libary
find Latest
Related
Files