LOGIN
HOME
CATEGORIES
UPLOAD FILE
PRICING
HOUSE PLAN
ABOUT US
CONTACT US
Health Center Plan DWG File
Home
Categories
Architecture
Corporate Building
Health Center Plan DWG File
Uploaded by:
Komal
View Profile
View Profile
Description
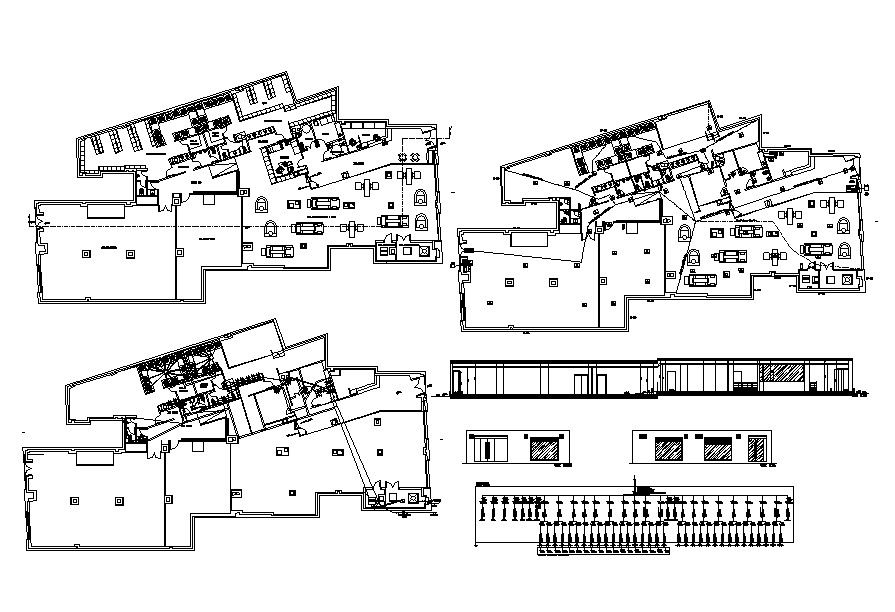
Health Center Plan DWG File; 2d CAD drawing of health center floor layout plan includes room spinning, GYM, aerobic room, bathroom, and dressing change room.
File Type:
DWG
File Size:
1.3 MB
Category::
Architecture
Sub Category::
Corporate Building
type:
Gold
Uploaded by:
Komal
View Profile
Download
Add to libary
find Latest
Related
Files