LOGIN
HOME
CATEGORIES
UPLOAD FILE
PRICING
HOUSE PLAN
ABOUT US
CONTACT US
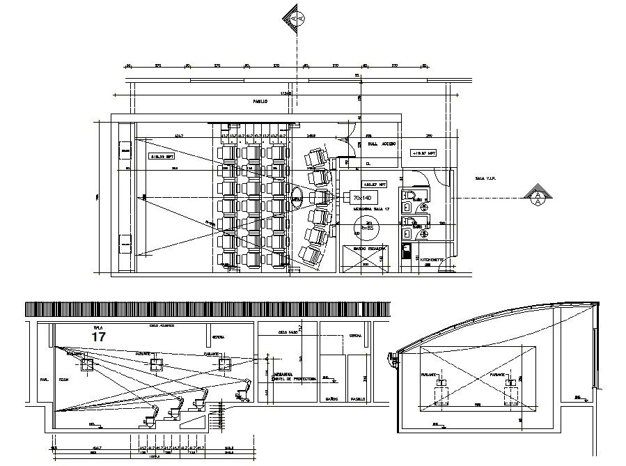
Home Theater Plan DWG File
Home
Categories
Architecture
Multiplex Theater
Home Theater Plan DWG File
Uploaded by:
Komal
View Profile
View Profile
Description
Home Theater Plan DWG File; 2d CAD drawing includes layout plan and section plan of home theater project and you can get Individual cinema experience.
File Type:
DWG
File Size:
378 KB
Category::
Architecture
Sub Category::
Multiplex Theater
type:
Gold
Uploaded by:
Komal
View Profile
Download
Add to libary
find Latest
Related
Files