LOGIN
HOME
CATEGORIES
UPLOAD FILE
PRICING
HOUSE PLAN
ABOUT US
CONTACT US
Disco Club CAD File
Home
Categories
Architecture
Hotels and Restaurants
Disco Club CAD File
Uploaded by:
Jiya
View Profile
View Profile
Description
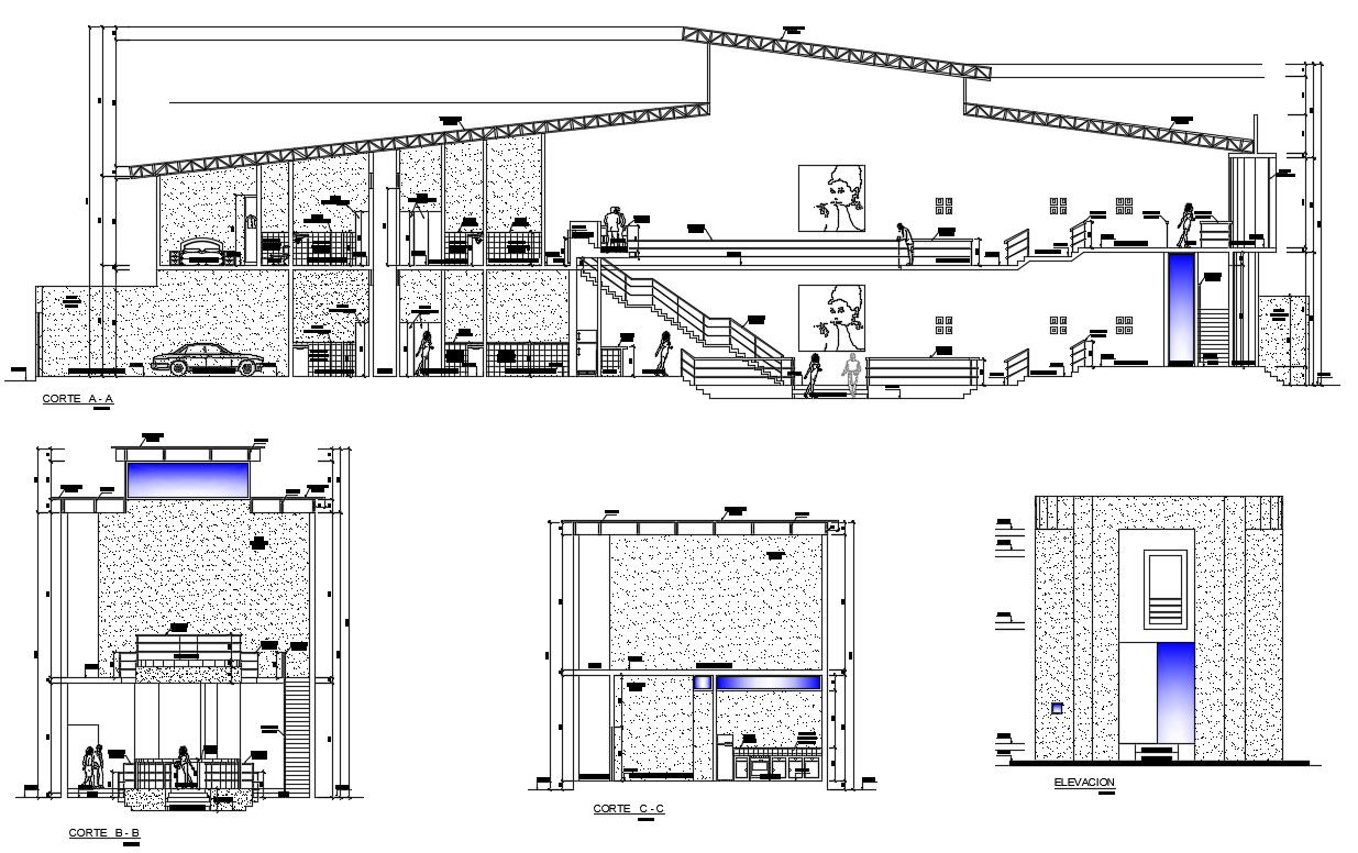
Sectional Layout Design of disco building which shows the floor level details of building with floor level details, furniture blocks, bar counter area details, and various objects details.
File Type:
DWG
File Size:
1.7 MB
Category::
Architecture
Sub Category::
Hotels and Restaurants
type:
Gold
Uploaded by:
Jiya
View Profile
Download
Add to libary
find Latest
Related
Files