Apartment House Section Plan

Apartment House Section Plan
Profile

Uploaded by:

Komal

Description
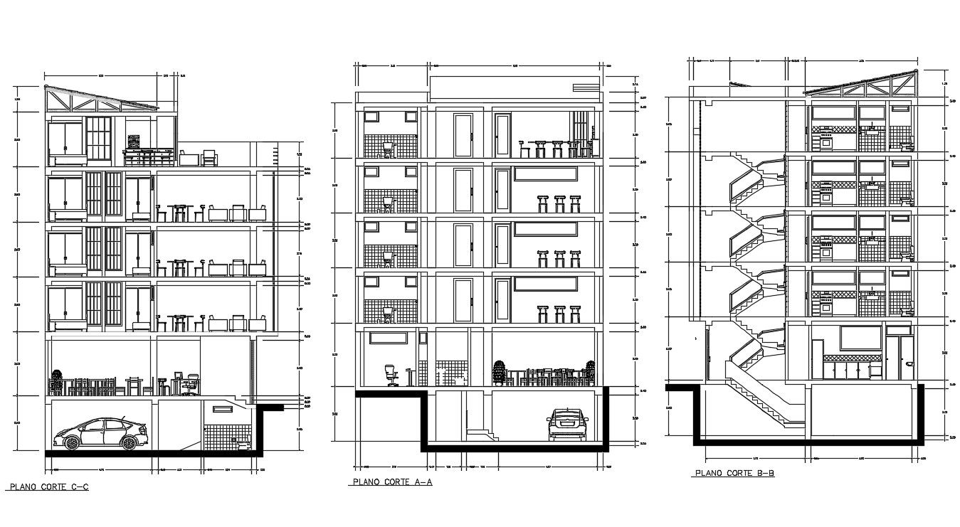
Apartment House Section Plan DWG File; 2d CAD drawing of architecture apartment with car parking building section plan includes cross-cut furniture detail and dimension detail in AutoCAD format.
Profile

Uploaded by:

Komal

find Latest

Related Files

WhatsApp Chat