Commercial Shop Building AutoCAD File

Commercial Shop Building AutoCAD File
Profile

Uploaded by:

Komal

Description
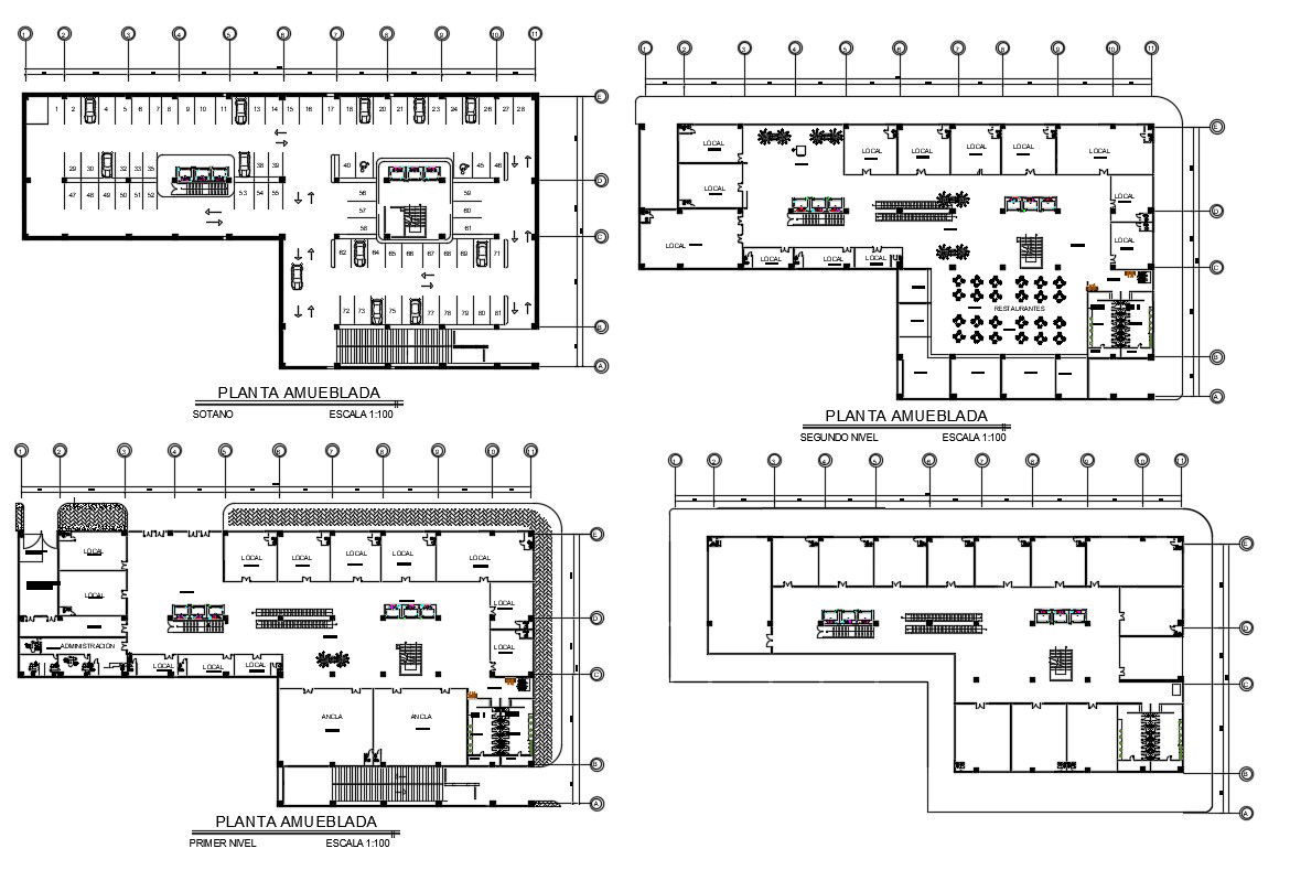
Commercial Shop Building AutoCAD File; the architecture commercial shop building CAD drawing includes a basement parking plan and shop floor plan with dimension detail in AutoCAD format.
Profile

Uploaded by:

Komal

find Latest

Related Files

WhatsApp Chat