LOGIN
HOME
CATEGORIES
UPLOAD FILE
PRICING
HOUSE PLAN
ABOUT US
CONTACT US
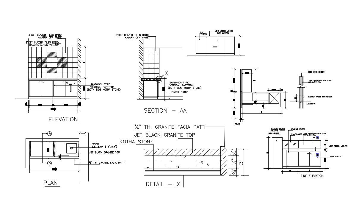
Kitchen Sink Design
Home
Categories
Furniture
Kitchen Furniture
Kitchen Sink Design
Uploaded by:
akansha
ghatge
View Profile
View Profile
Description
Download kitchen sink design CAD drawing that shows sink plan, different sides of elevation, cabinets blocks, and other plumbing blocks detailing.
File Type:
DWG
File Size:
70 KB
Category::
Furniture
Sub Category::
Kitchen Furniture
type:
Gold
Uploaded by:
akansha
ghatge
View Profile
Download
Add to libary
find Latest
Related
Files