House Elevation Architecture CAd Drawing Free Download
Description
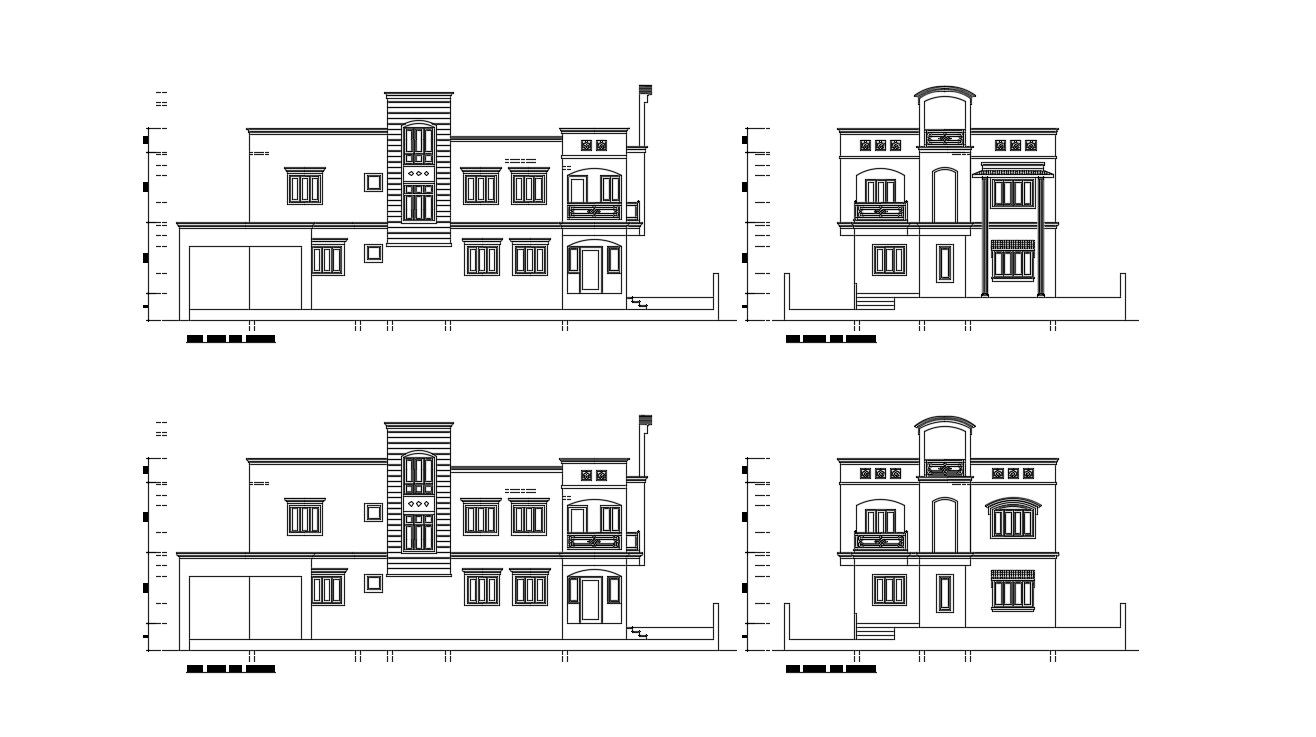
Residential bungalow all sides elevation CAD Drawing download for free that shows building front elevation, side elevation, and rear elevation.

Uploaded by:
akansha
ghatge

Uploaded by:
ghatge