LOGIN
HOME
CATEGORIES
UPLOAD FILE
PRICING
HOUSE PLAN
ABOUT US
CONTACT US
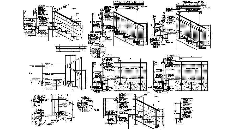
Staircase CAD Design
Home
Categories
Construction
Staircase Details
Staircase CAD Design
Uploaded by:
Poonam
View Profile
View Profile
Description
Staircase CAD drawing; shows the side elevation of the staircase along with the railing and glass railing. It also shows the baluster, riser, and tread.
File Type:
DWG
File Size:
1.7 MB
Category::
Construction
Sub Category::
Staircase Details
type:
Gold
Uploaded by:
Poonam
View Profile
Download
Add to libary
find Latest
Related
Files