Small Kitchen Plans and Elevation CAD Drawing
Description
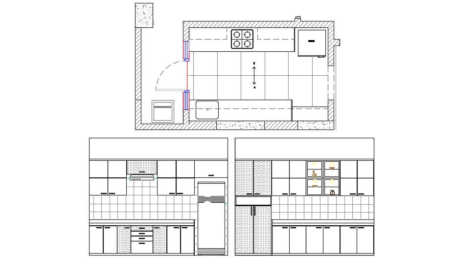
Kitchen Flooring plan design that shows kitchen furniture layout details along with kitchen elevation details download modular kitchen design plan for free.

Uploaded by:
akansha
ghatge

Uploaded by:
ghatge