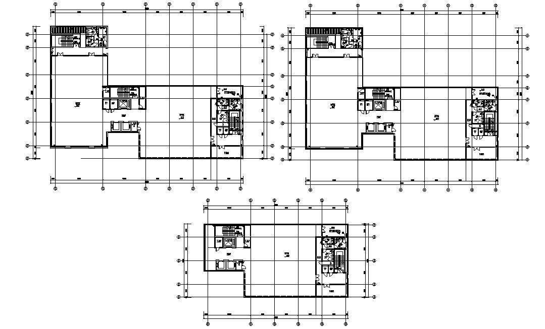
Commercial Complex Floor Plan With Center Line AutoCAD File

Commercial Complex Floor Plan With Center Line AutoCAD File
Profile

Uploaded by:

Rashmi

Solanki

Description
Commercial Complex Floor Plan With Center Line AutoCAD File; detail of centerline, texting, toilet detail, in Commercial building CAD file.
Profile

Uploaded by:

Rashmi

Solanki

find Latest

Related Files

WhatsApp Chat