Club House Design AutoCAD Drawing
Description
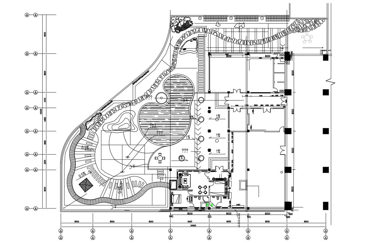
Clubhouse building design plan that shows landscaping details, swimming pool, parking space area, dimension, centerline, and various other works detailing download file.

Uploaded by:
akansha
ghatge

Uploaded by:
ghatge