Architectural Roof Section DWG File

Architectural Roof Section DWG File
Profile

Uploaded by:

Rashmi

Solanki

Description
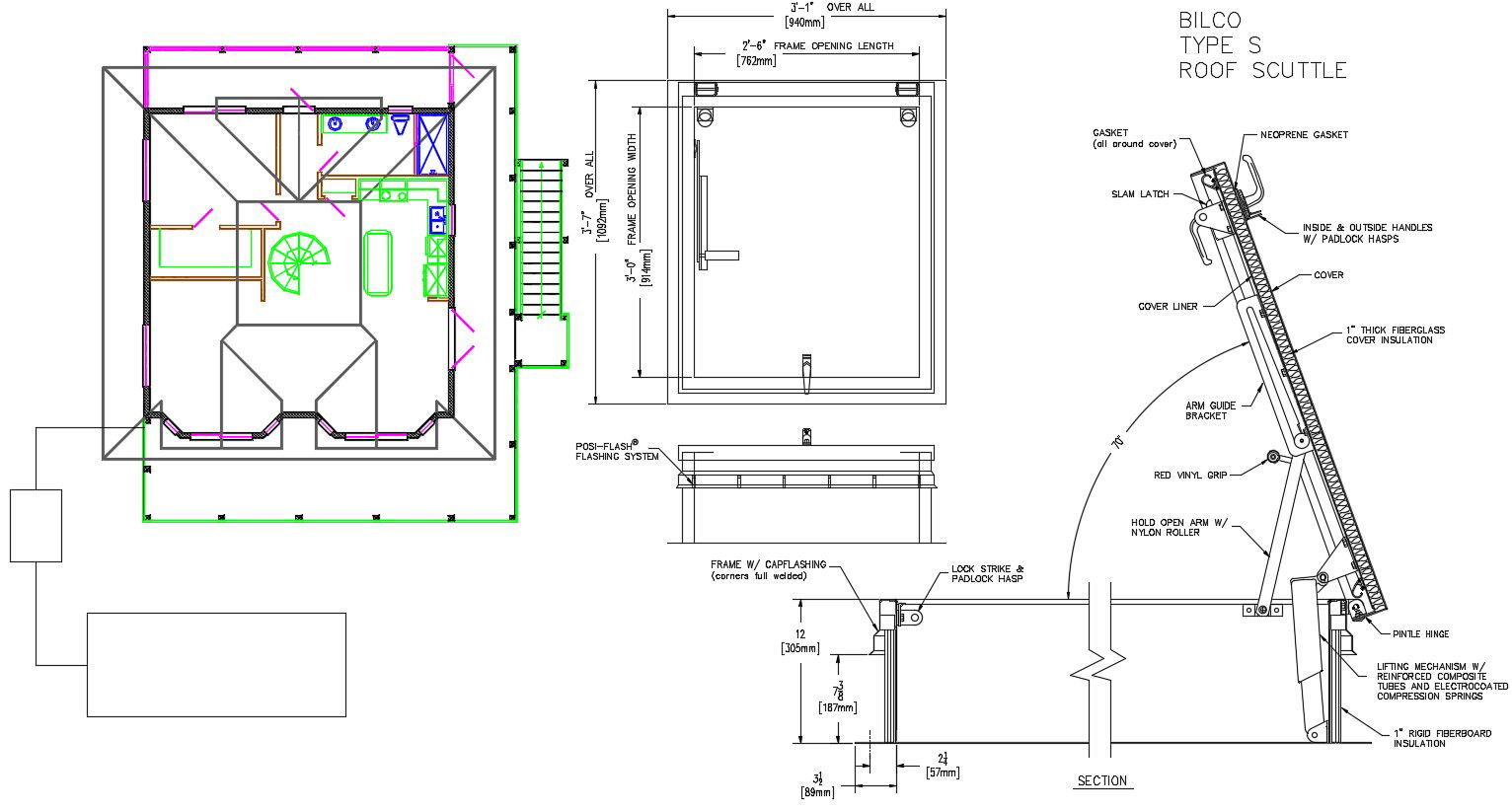
Architectural Roof Section DWG File; this is the detail of the roof section includes dimension, texting, floor plan, and furniture plan in AutoCAD format.
Profile

Uploaded by:

Rashmi

Solanki

find Latest

Related Files

WhatsApp Chat