LOGIN
HOME
CATEGORIES
UPLOAD FILE
PRICING
HOUSE PLAN
ABOUT US
CONTACT US
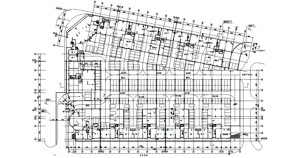
Centre Line Drawing Of Building Plan DWG File
Home
Categories
Architecture
Corporate Building
Centre Line Drawing Of Building Plan DWG File
Uploaded by:
Komal
View Profile
View Profile
Description
Centre Line Drawing Of Building Plan DWG File; download free AutoCAD file of ground floor centre line plan with floor plan detail.
File Type:
DWG
File Size:
1 MB
Category::
Architecture
Sub Category::
Corporate Building
type:
Free
Uploaded by:
Komal
View Profile
Download
Add to libary
find Latest
Related
Files