LOGIN
HOME
CATEGORIES
UPLOAD FILE
PRICING
HOUSE PLAN
ABOUT US
CONTACT US
Commercial Building Plan Download Free DWG File
Home
Categories
Architecture
Corporate Building
Commercial Building Plan Download Free DWG File
Uploaded by:
Komal
View Profile
View Profile
Description
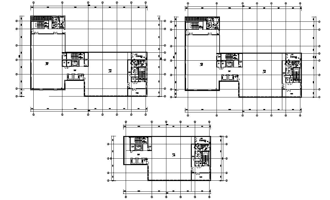
Commercial Building Plan Download Free DWG File; download free AutoCAD file of commercial building different floor plan with dimension details.
File Type:
DWG
File Size:
503 KB
Category::
Architecture
Sub Category::
Corporate Building
type:
Free
Uploaded by:
Komal
View Profile
Download
Add to libary
find Latest
Related
Files