Drinage Catch Basin Design AutoCAD drawing
Description
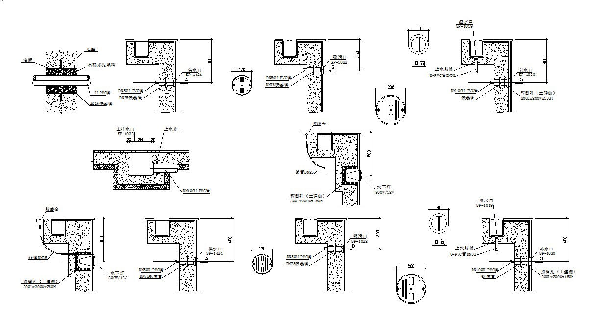
Drainage basin design construction details that show drainage pipe details along with drain jali details, PVC pipe blocks, catch basin size, and various other details download CAD file for free.

Uploaded by:
akansha
ghatge
