Ply Wood Furniture Detailing AutoCAD File Free Download
Description
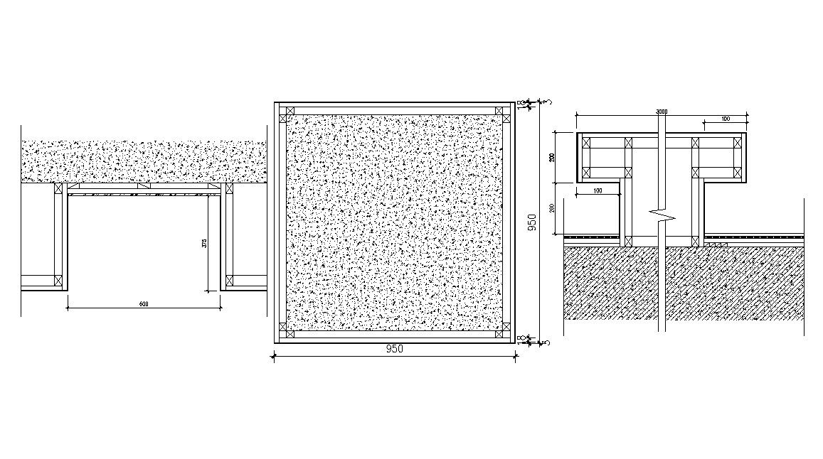
Ply Wood Furniture Detailing AutoCAD File Free Download; this is the simple detail drawing of the plywood box section with dimension, and hatching, in DWG format.
File Type:
DWG
File Size:
324 KB
Category::
Interior Design
Sub Category::
Living Room Interior Design
type:
Free
Uploaded by:
Rashmi
Solanki

