LOGIN
HOME
CATEGORIES
UPLOAD FILE
PRICING
HOUSE PLAN
ABOUT US
CONTACT US
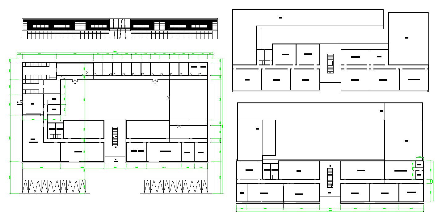
Building Floor Plan AutoCAD Drawing
Home
Categories
Architecture
Corporate Building
Building Floor Plan AutoCAD Drawing
Uploaded by:
Poonam
View Profile
View Profile
Description
The building floor plan shows the details of the ground floor plan along with the first-floor plan and second-floor plan. It also has shown the dimension details.
File Type:
DWG
File Size:
109 KB
Category::
Architecture
Sub Category::
Corporate Building
type:
Gold
Uploaded by:
Poonam
View Profile
Download
Add to libary
find Latest
Related
Files