LOGIN
HOME
CATEGORIES
UPLOAD FILE
PRICING
HOUSE PLAN
ABOUT US
CONTACT US
Download Commerce Hub AutoCAD File
Home
Categories
Architecture
Corporate Building
Download Commerce Hub AutoCAD File
Uploaded by:
Poonam
View Profile
View Profile
Description
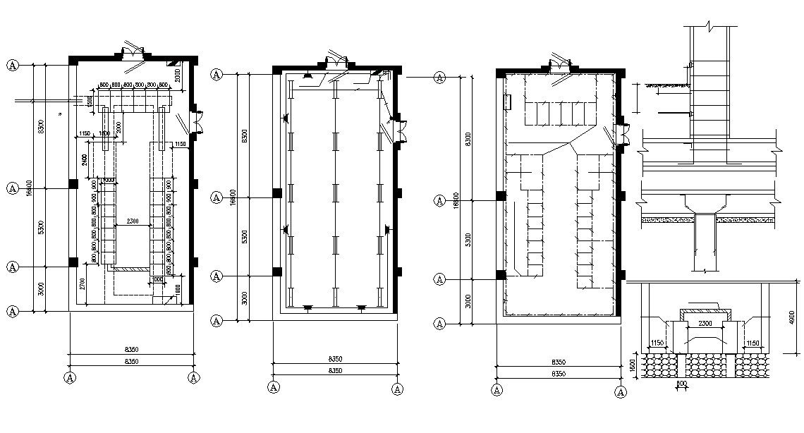
Commerce hub plan includes the details of the shops along with the main entrance gate. Also given the dimension details.
File Type:
DWG
File Size:
1 MB
Category::
Architecture
Sub Category::
Corporate Building
type:
Gold
Uploaded by:
Poonam
View Profile
Download
Add to libary
find Latest
Related
Files