LOGIN
HOME
CATEGORIES
UPLOAD FILE
PRICING
HOUSE PLAN
ABOUT US
CONTACT US
Ancillary Building Plan AutoCAD File
Home
Categories
Architecture
Corporate Building
Ancillary Building Plan AutoCAD File
Uploaded by:
Komal
View Profile
View Profile
Description
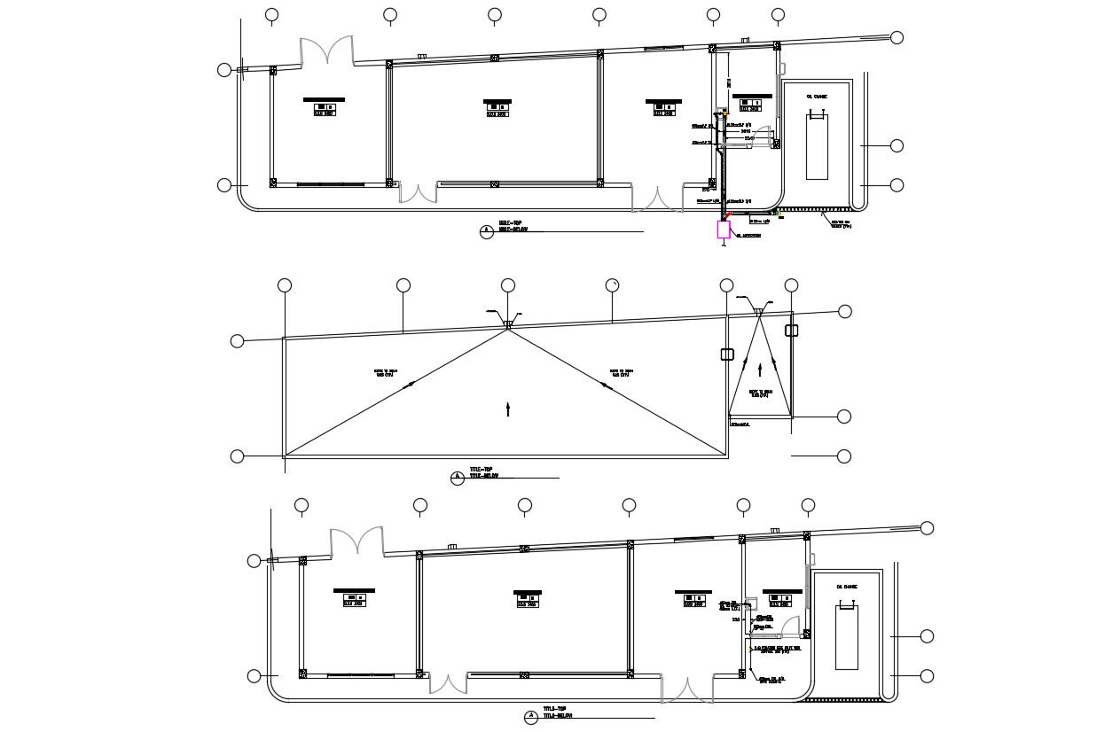
Ancillary Building Plan AutoCAD File; download free AutoCAD file of Ancillary Building layout plan and drainage piping for ground floor with description details.
File Type:
DWG
File Size:
2.1 MB
Category::
Architecture
Sub Category::
Corporate Building
type:
Free
Uploaded by:
Komal
View Profile
Download
Add to libary
find Latest
Related
Files