LOGIN
HOME
CATEGORIES
UPLOAD FILE
PRICING
HOUSE PLAN
ABOUT US
CONTACT US
Simple House Line Plan Design Free Download
Home
Categories
Architecture
Bungalow House Design
Simple House Line Plan Design Free Download
Uploaded by:
Komal
View Profile
View Profile
Description
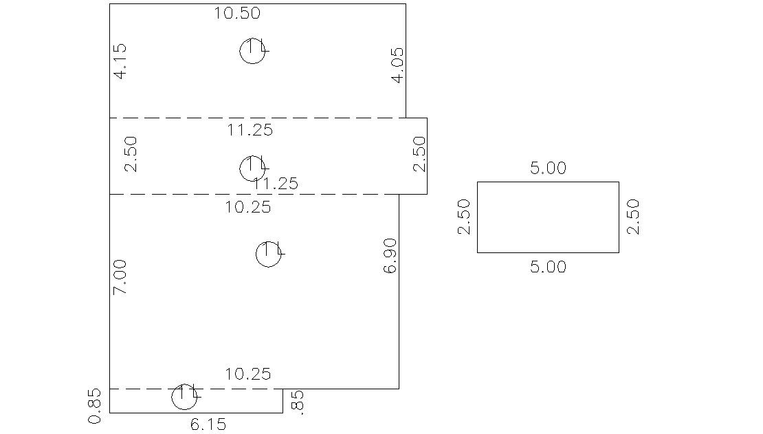
this is the simple house line plan design for the first step in AutoCAD drawing. download free DWG file of house line plan.
File Type:
DWG
File Size:
858 KB
Category::
Architecture
Sub Category::
Bungalow House Design
type:
Free
Uploaded by:
Komal
View Profile
Download
Add to libary
find Latest
Related
Files