LOGIN
HOME
CATEGORIES
UPLOAD FILE
PRICING
HOUSE PLAN
ABOUT US
CONTACT US
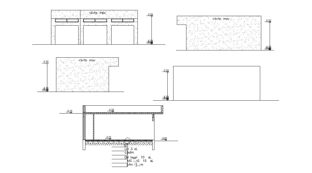
Commercial Shops Building Sectional Elevation Design
Home
Categories
Architecture
Corporate Building
Commercial Shops Building Sectional Elevation Design
Uploaded by:
Komal
View Profile
View Profile
Description
Download free DWG file of commercial shops building elevation design shows wall section, RCC slab and floor with dimension detail.
File Type:
DWG
File Size:
587 KB
Category::
Architecture
Sub Category::
Corporate Building
type:
Free
Uploaded by:
Komal
View Profile
Download
Add to libary
find Latest
Related
Files