Many Floor Plan Of Residential Building Design AutoCAD File
Description
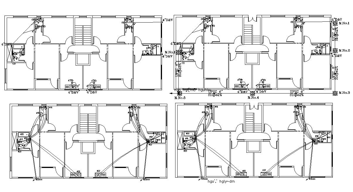
this is the drawing of many floor plan with toilets and kitchen sanitary layout design, drainage pipes layout plan, ground floor manhole details, it's an architectural residential planning with more details.
Uploaded by:
Rashmi
Solanki
