Huge Bungalow Plan With Terrace And Slab Design AutoCAD File
Description
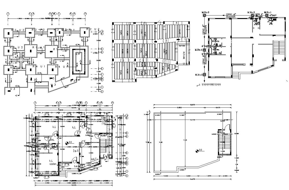
this is the drawing of huge bungalow layout design with working drawing dimension details, column foundation with excavation plan, centerline plan, terrace floor plan with stair cabin design, toilet plumbing details with manhole marking in ground floor, beam and column marking in slab and other more details.
Uploaded by:
Rashmi
Solanki

