LOGIN
HOME
CATEGORIES
UPLOAD FILE
PRICING
HOUSE PLAN
ABOUT US
CONTACT US
House Room Design
Home
Categories
Architecture
House Plan
House Room Design
Uploaded by:
john
kelly
View Profile
View Profile
Description
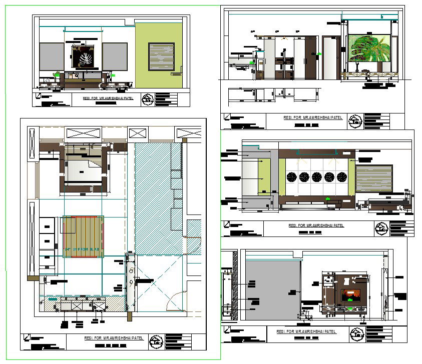
This house in drawing room interior design & Elevation & plan lay-out design.
File Type:
DWG
File Size:
844 KB
Category::
Architecture
Sub Category::
House Plan
type:
Gold
Uploaded by:
john
kelly
View Profile
Download
Add to libary
find Latest
Related
Files