LOGIN
HOME
CATEGORIES
UPLOAD FILE
PRICING
HOUSE PLAN
ABOUT US
CONTACT US
Working Bungalow Elevation and Section Design CAD File
Home
Categories
Architecture
Bungalow House Design
Working Bungalow Elevation and Section Design CAD File
Uploaded by:
Poonam
View Profile
View Profile
Description
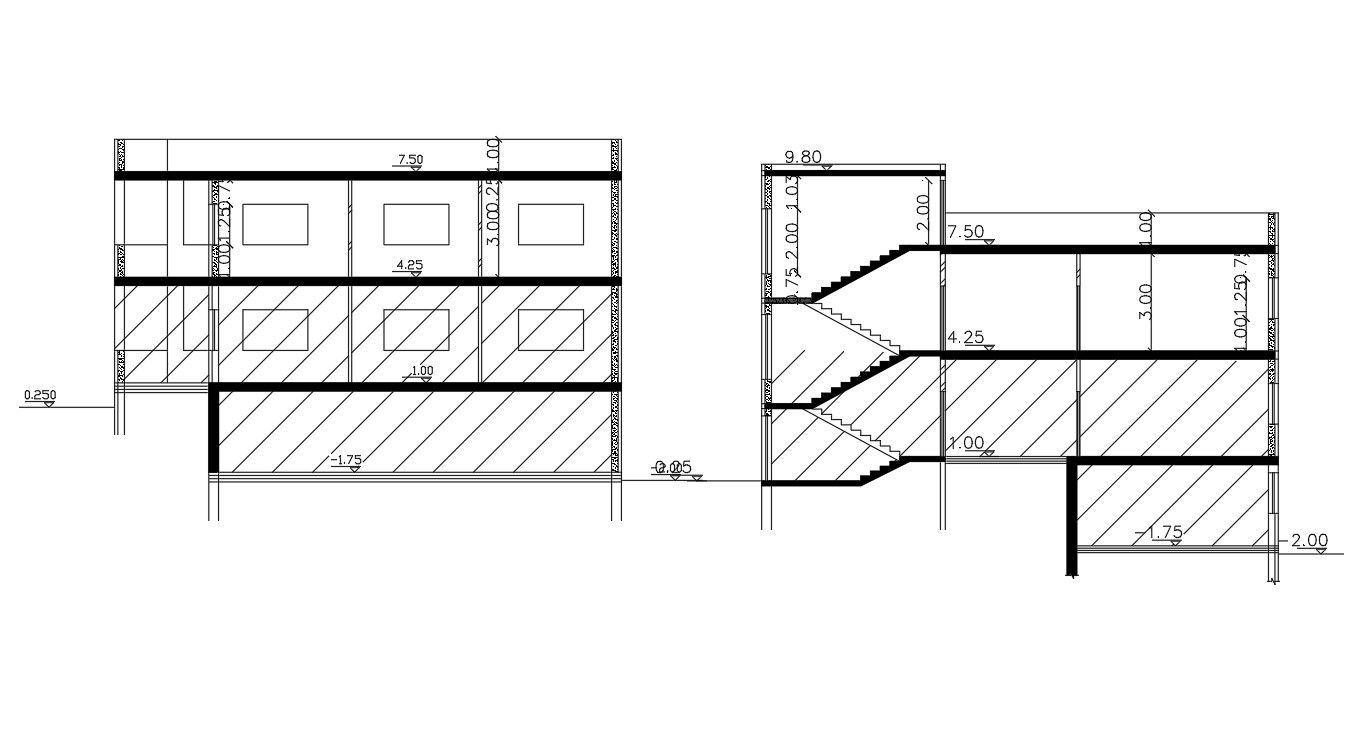
this design of bungalow drawing dimension, front elevation, and sectional design along with floor leveling, stairs detail download CAD file for free.
File Type:
DWG
File Size:
390 KB
Category::
Architecture
Sub Category::
Bungalow House Design
type:
Free
Uploaded by:
Poonam
View Profile
Download
Add to libary
find Latest
Related
Files