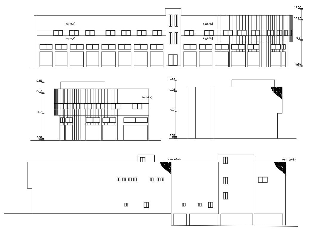
Commercial Building Elevation In AutoCAD File

Commercial Building Elevation In AutoCAD File
Profile

Uploaded by:

Poonam

Description
Residential house building design with floor levels dimension details, doors and windows marking in elevation, and other more detail related to elevation, it a DWG file format.
Profile

Uploaded by:

Poonam

find Latest

Related Files

WhatsApp Chat