LOGIN
HOME
CATEGORIES
UPLOAD FILE
PRICING
HOUSE PLAN
ABOUT US
CONTACT US
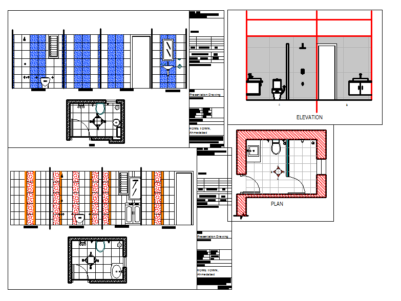
Bathroom detail
Home
Categories
Architecture
Bathroom & Toilet Drawing
Bathroom detail
Uploaded by:
john
kelly
View Profile
View Profile
Description
This bathroom detail in this drawing & Bathroom With toilet detail in all Elevation & lay-out detail.
File Type:
DWG
File Size:
101 KB
Category::
Architecture
Sub Category::
Bathroom & Toilet Drawing
type:
Gold
Uploaded by:
john
kelly
View Profile
Download
Add to libary
find Latest
Related
Files