32 By 30 Feet House Building Design Free Download

32 By 30 Feet House Building Design Free Download
Profile

Uploaded by:

Komal

Description
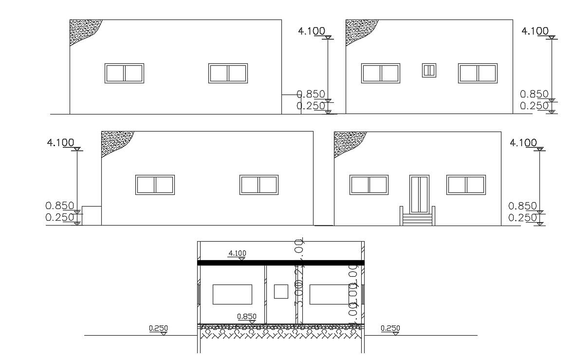
Download free DWG file single floor house building sectional and elevation design that shows all side views with dimension detail, door and window marking design.
Profile

Uploaded by:

Komal

find Latest

Related Files