LOGIN
HOME
CATEGORIES
UPLOAD FILE
PRICING
HOUSE PLAN
ABOUT US
CONTACT US
Kitchen Furniture Design
Home
Categories
Interior Design
Kitchen Interiors
Kitchen Furniture Design
Uploaded by:
Jafania
Waxy
View Profile
View Profile
Description
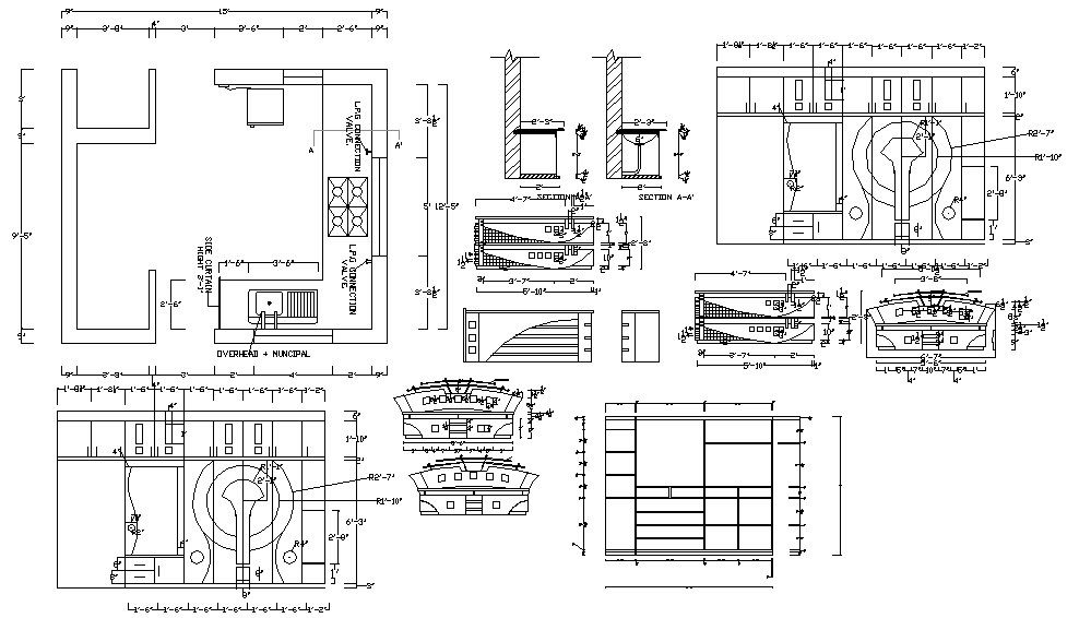
kitchen interior design in the house & standing platform Design & Plan lay-out & furniture Elevation detail with dimension.
File Type:
DWG
File Size:
278 KB
Category::
Interior Design
Sub Category::
Kitchen Interiors
type:
Gold
Uploaded by:
Jafania
Waxy
View Profile
Download
Add to libary
find Latest
Related
Files