LOGIN
HOME
CATEGORIES
UPLOAD FILE
PRICING
HOUSE PLAN
ABOUT US
CONTACT US
52 X 85 House Plan Design DWG File
Home
Categories
Architecture
House Plan
52 X 85 House Plan Design DWG File
Uploaded by:
Komal
View Profile
View Profile
Description
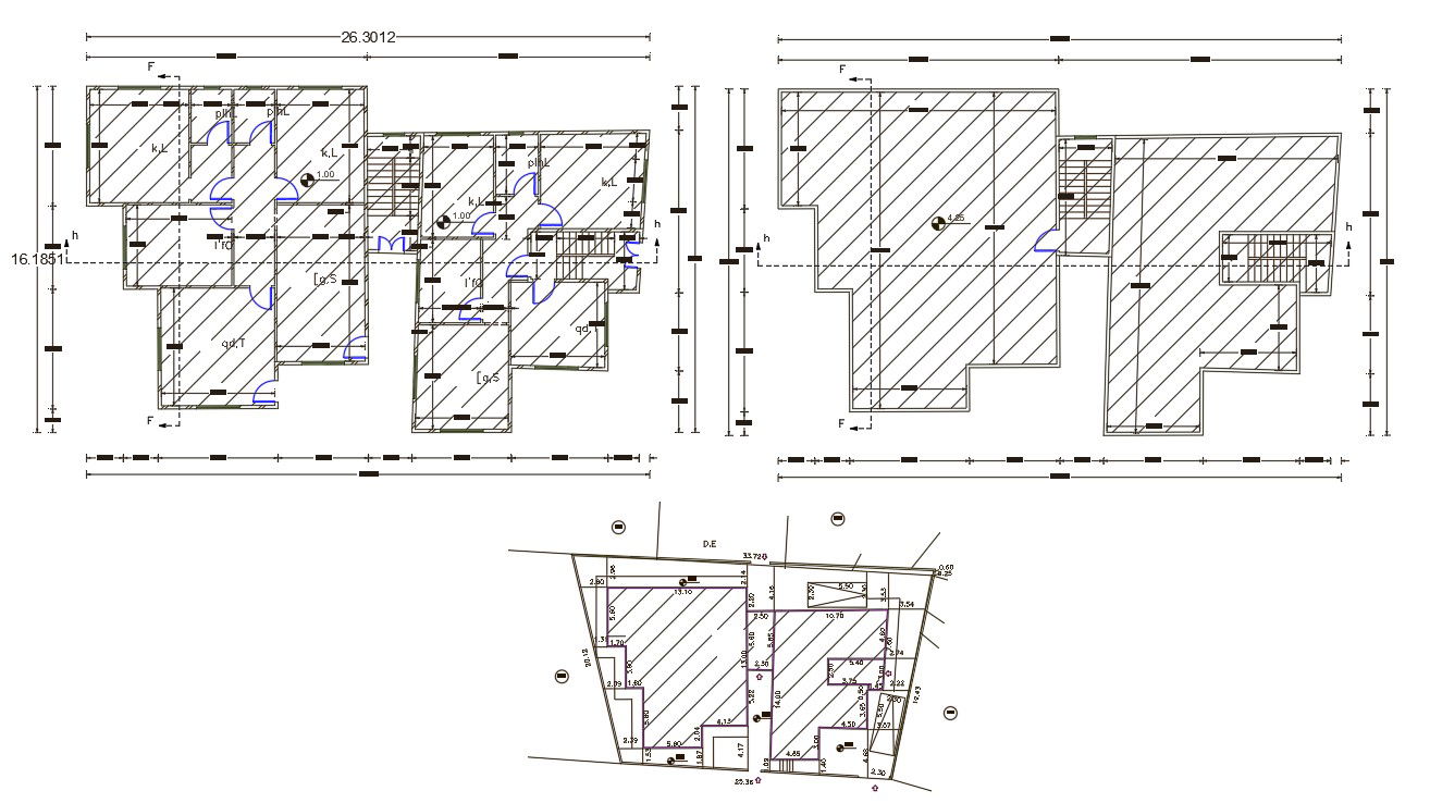
2d CAD drawing of 2 BHK house ground floor plan and terrace plan design with site plot plan land survey detail. download 52 by 85 feet house plan design DWG file.
File Type:
DWG
File Size:
143 KB
Category::
Architecture
Sub Category::
House Plan
type:
Gold
Uploaded by:
Komal
View Profile
Download
Add to libary
find Latest
Related
Files