Septic Tank Design
Description
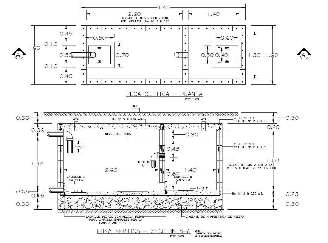
Pointed brick with poor mix for cleaning. push for the previous camera, Septic tank - plants,
File Type:
DWG
File Size:
82 KB
Category::
Structure
Sub Category::
Section Plan CAD Blocks & DWG Drawing Models
type:
Gold

Uploaded by:
Jafania
Waxy

