LOGIN
HOME
CATEGORIES
UPLOAD FILE
PRICING
HOUSE PLAN
ABOUT US
CONTACT US
Free Download Slab Bar Structure Design
Home
Categories
Construction
Structure Drawing
Free Download Slab Bar Structure Design
Uploaded by:
Komal
View Profile
View Profile
Description
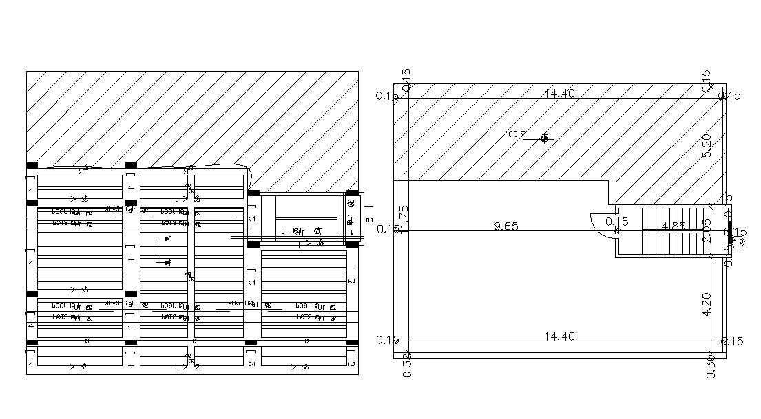
Download the free DWG file of the construction house working plan design that shows the slab bar structure and column layout plan.
File Type:
DWG
File Size:
128 KB
Category::
Construction
Sub Category::
Structure Drawing
type:
Free
Uploaded by:
Komal
View Profile
Download
Add to libary
find Latest
Related
Files