2 Unit Apartment House Plan DWG File

2 Unit Apartment House Plan DWG File
Profile

Uploaded by:

Komal

Description
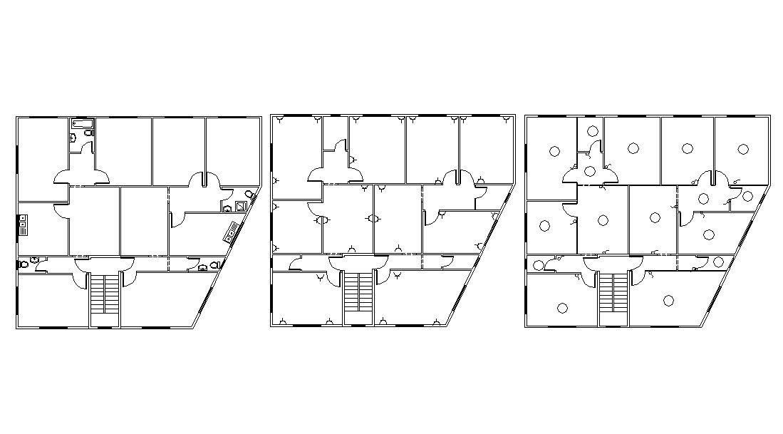
the architecture AutoCAD house apartment electrical layout plan CAD drawing includes ceiling light point, switches, and socket detail. download apartment electrical plan design DWG file.
Profile

Uploaded by:

Komal

find Latest

Related Files

WhatsApp Chat