LOGIN
HOME
CATEGORIES
UPLOAD FILE
PRICING
HOUSE PLAN
ABOUT US
CONTACT US
Free Download Corporation Working Plan Drawing DWG File
Home
Categories
Architecture
Corporate Building
Free Download Corporation Working Plan Drawing DWG File
Uploaded by:
Komal
View Profile
View Profile
Description
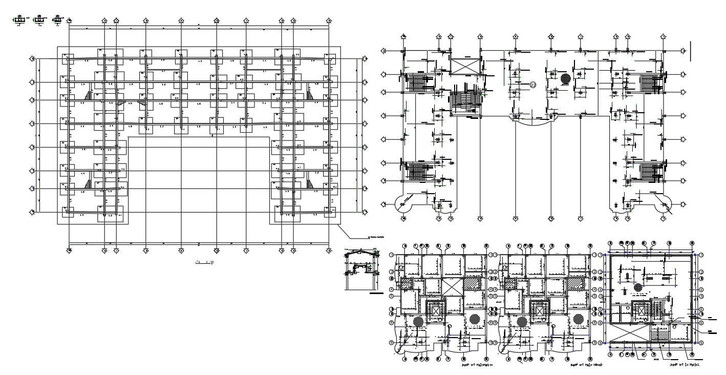
Download free DWG file of the corporation working plan drawing that shows foundation plan, centre line plan and all dimension detail.
File Type:
DWG
File Size:
972 KB
Category::
Architecture
Sub Category::
Corporate Building
type:
Free
Uploaded by:
Komal
View Profile
Download
Add to libary
find Latest
Related
Files