Building House Section Layout DWG File

Building House Section Layout DWG File
Profile

Uploaded by:

Poonam

Description
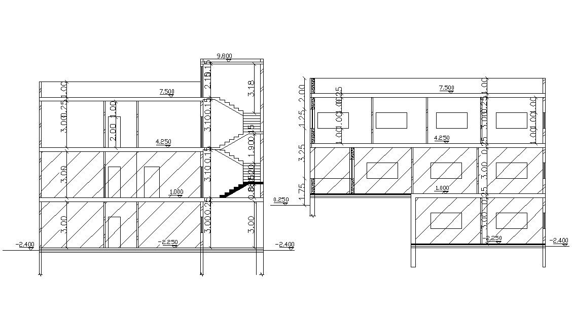
The modern architecture section layout provide slab details, stair details, floor level, plinth level, sill level, parapet wall with dimension details. download AutoCAD file.
Profile

Uploaded by:

Poonam

find Latest

Related Files

WhatsApp Chat