Twin House Electrical And Plumbing Layout Plan AutoCAD File
Description
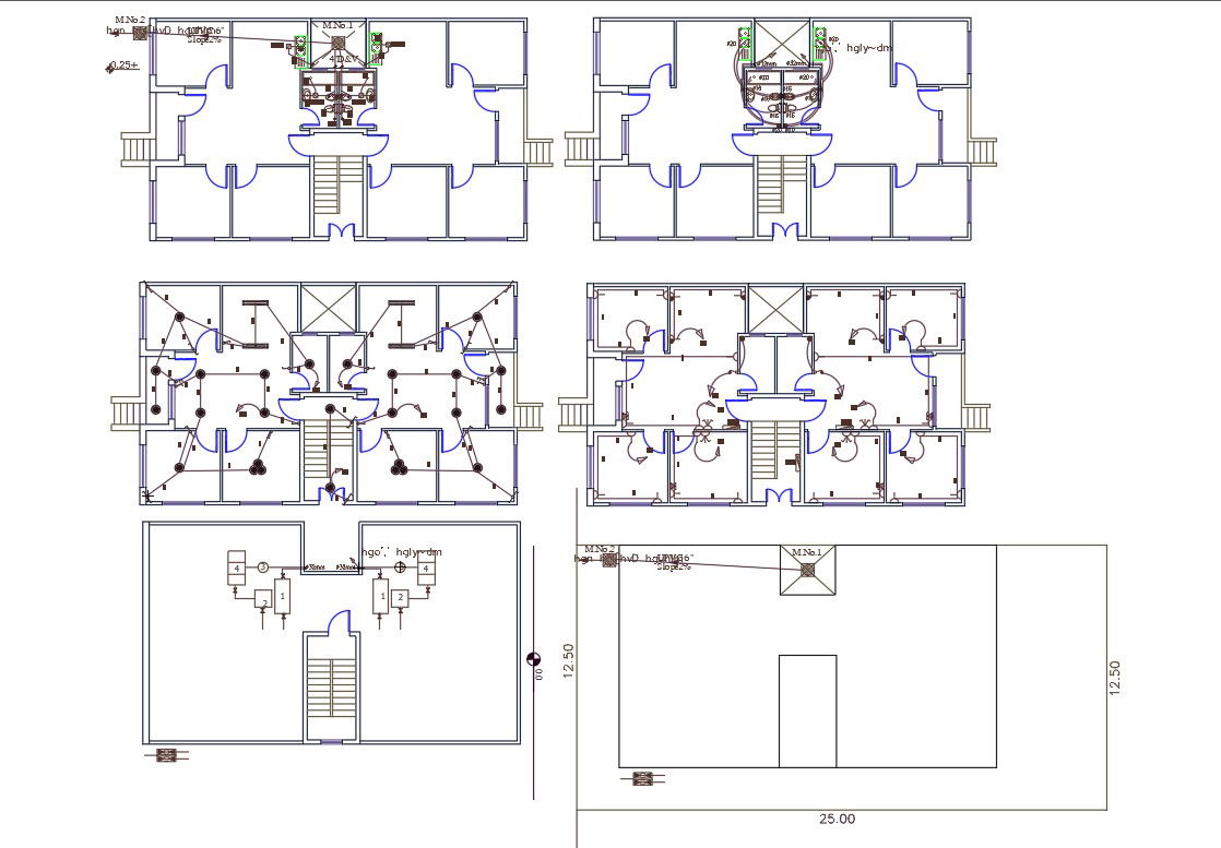
10 X 18 meter plot size of 2 BHK twin house ground floor plan with electrical and plumbing layout plan design that shows the guide lien of how to install ceiling light point, switches, plumbing pipe line plan, sanitary ware detail and gutter line connected to chamber box. Download 2 BHK house wiring and plumbing plan design DWG file.
Uploaded by:

