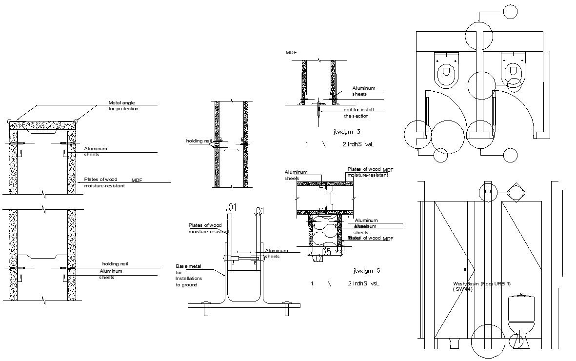
Western Toilet Plan And Elevation Design DWG File
Description
2d CAD drawing of western toilet plan with WC commode two piece pedestal pan toilets and installation detail. download free DWG file of public western toilet design AutoCAD file.
Uploaded by:

