Plinth Beam, Column And Foundation Plan With Scheduled Working House Project
Description
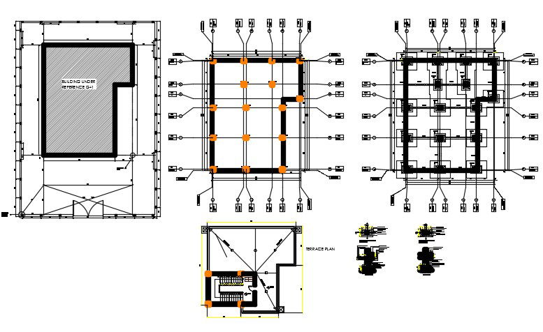
The Construction working house center line plan detail CAD drawing that shows plinth beam schedule and footing schedule which includes column size, footing size, length, breadth, height and column to column connection. brick masonry to be done in English bond with 1:4 cement mortar unless other specified, external brick wall 230 mm thck and internal brick wall 150 mm thck otherwise mentioned, depth of foundation depends upon the soil bearing capacity of the soil or as specified by the r.c.c. consultant.
File Type:
DWG
File Size:
438 KB
Category::
Construction
Sub Category::
Construction Detail Drawings
type:
Gold
Uploaded by:

