Commercial toilet Elevation diagram with wall tile marking and section details are given in this AutoCAD DWG drawing.Download the AutoCAD 2D DWG file.
Description
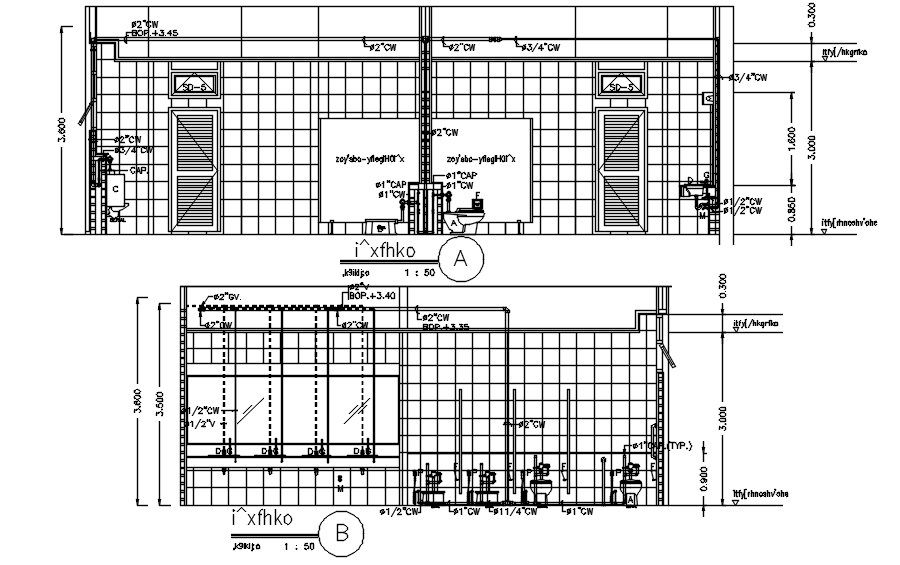
Commercial toilet Elevation diagram with wall tile marking and section details are given in this AutoCAD DWG drawing. Sectional details are clearly given in this drawing file. the toilet section details, washbasin, western toilet, and urinals are given in this DWG file. Download the AutoCAD 2D DWG file. Thank you so much for downloading the DWG file from the cadbull website.
File Type:
DWG
File Size:
564 KB
Category::
Structure
Sub Category::
Section Plan CAD Blocks & DWG Drawing Models
type:
Gold

Uploaded by:
AS
SETHUPATHI

