Boiler Tank Elevation Design AutoCAD Drawing DWG File
Description
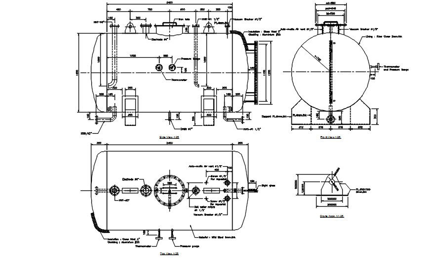
the boiler tank plant AutoCAD drawing that shows different angle view design. that shows Thermometer for water pressure, Auto-matic Air vent, Hot water return and raw water outlet valve detail. also has water meter check valve, brine inlet flang mount mixer and gate valve. Thank you for downloading the AutoCAD file and other CAD program from our website.
Uploaded by:

