3 BHK Apartment Blocks AutoCAD Drawing DWG File
Description
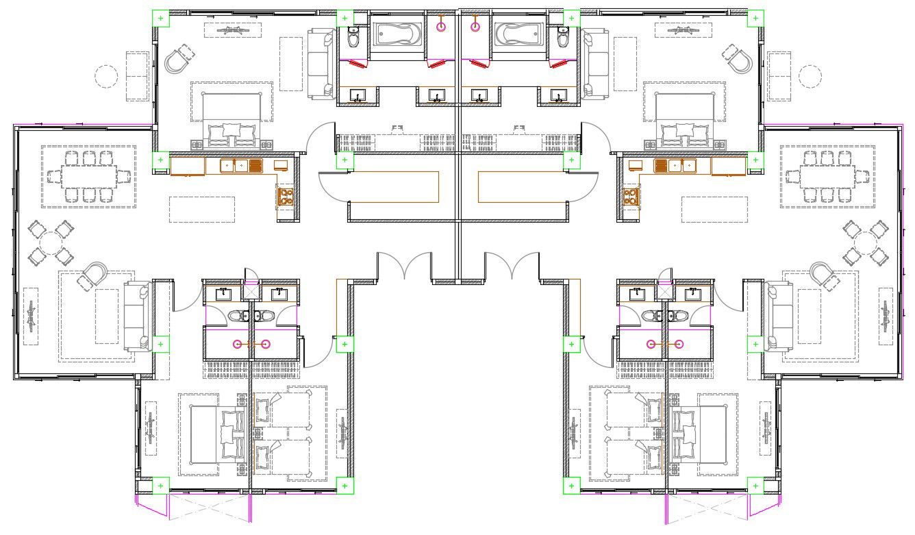
The architecture residence apartment furniture layout CAD drawing which consist 2 unit house plan that shows 3 master bedrooms, modular kitchen, store room, dining area, drawing room and lobby. download 3 BHK apartment house project drawing DWG file. Thank you for downloading AutoCAD drawing DWG file from the our website.
Uploaded by:

